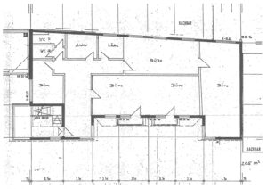
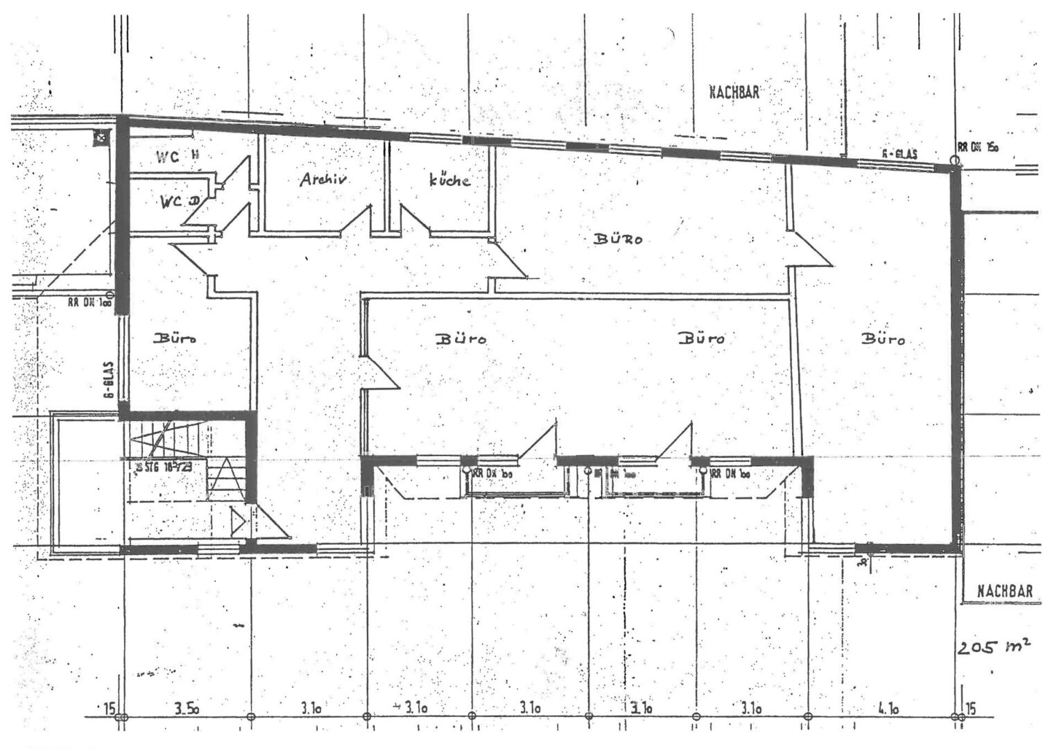
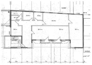
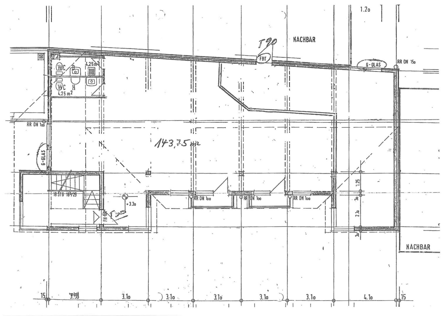
Zur Vermietung steht eine großzügige Bürofläche von ca. 350 m² in einem zentral gelegenen Geschäftshaus in der Engelstraße in Trier. Die Fläche erstreckt sich über das 1. und 2. Obergeschoss und kann bei Bedarf in zwei separat nutzbare Einheiten mit ca. 144 m² und ca. 206 m² aufgeteilt werden.
Der Standort zeichnet sich durch seine direkte Nähe zur Trierer Innenstadt und zur Porta Nigra aus. Die zentrale Lage bietet kurze Wege zu Behörden, Dienstleistern und dem Einzelhandel. Das nahegelegene Parkhaus Porta Nigra sorgt zudem für komfortable Parkmöglichkeiten für Kunden und Geschäftspartner. Zusätzlich kann ein Stellplatz direkt vor dem Gebäude separat angemietet werden.
Die Bürofläche profitiert von großen Fensterflächen, die für eine helle und freundliche Arbeitsatmosphäre sorgen. Insgesamt vier Balkone ergänzen das Raumangebot und bieten zusätzliche Aufenthaltsqualität.
Vor der Neuvermietung sind Modernisierungsmaßnahmen vorgesehen, darunter die Erneuerung der Bodenbeläge und der Sanitäreinrichtungen. Die Raumaufteilung ist flexibel gestaltbar und lässt sich an individuelle Anforderungen anpassen. Die genaue Ausgestaltung kann in Abstimmung mit dem zukünftigen Mieter erfolgen.
Die Fläche ist ab dem ersten Quartal 2026 verfügbar.
Der Mietpreis versteht sich zuzüglich der gesetzlichen Mehrwertsteuer in Höhe von derzeit 19 %.
Für weitere Informationen oder einen Besichtigungstermin stehen wir Ihnen gerne zur Verfügung.

