Diese exklusive Mietwohnung mit ca. 126m² Wohnfläche vereint stilvolle Eleganz und historischen Charme in einem einzigartigen Wohnambiente. Gelegen in einem denkmalgeschützten Gebäude, das sorgfältig restauriert wurde, bietet diese Immobilie nicht nur ein Zuhause, sondern ein echtes Wohngefühl mit Geschichte.
Die beeindruckende Außenfassade, geprägt von aufwendig gestalteten Ornamenten und historischen Details, erzählt die Geschichte vergangener Zeiten und verleiht dem Gebäude eine besondere Ausstrahlung. Beim Betreten der Wohnung tauchen Sie in ein modernes Wohnambiente ein, das durch hochwertige Materialien und eine durchdachte Gestaltung überzeugt.
Die hohen Decken mit originalgetreu erhaltenem Stuck, große Sprossenfenster und hochwertige Materialien schaffen eine harmonische Verbindung zwischen historischer Architektur und modernem Wohnstandard.
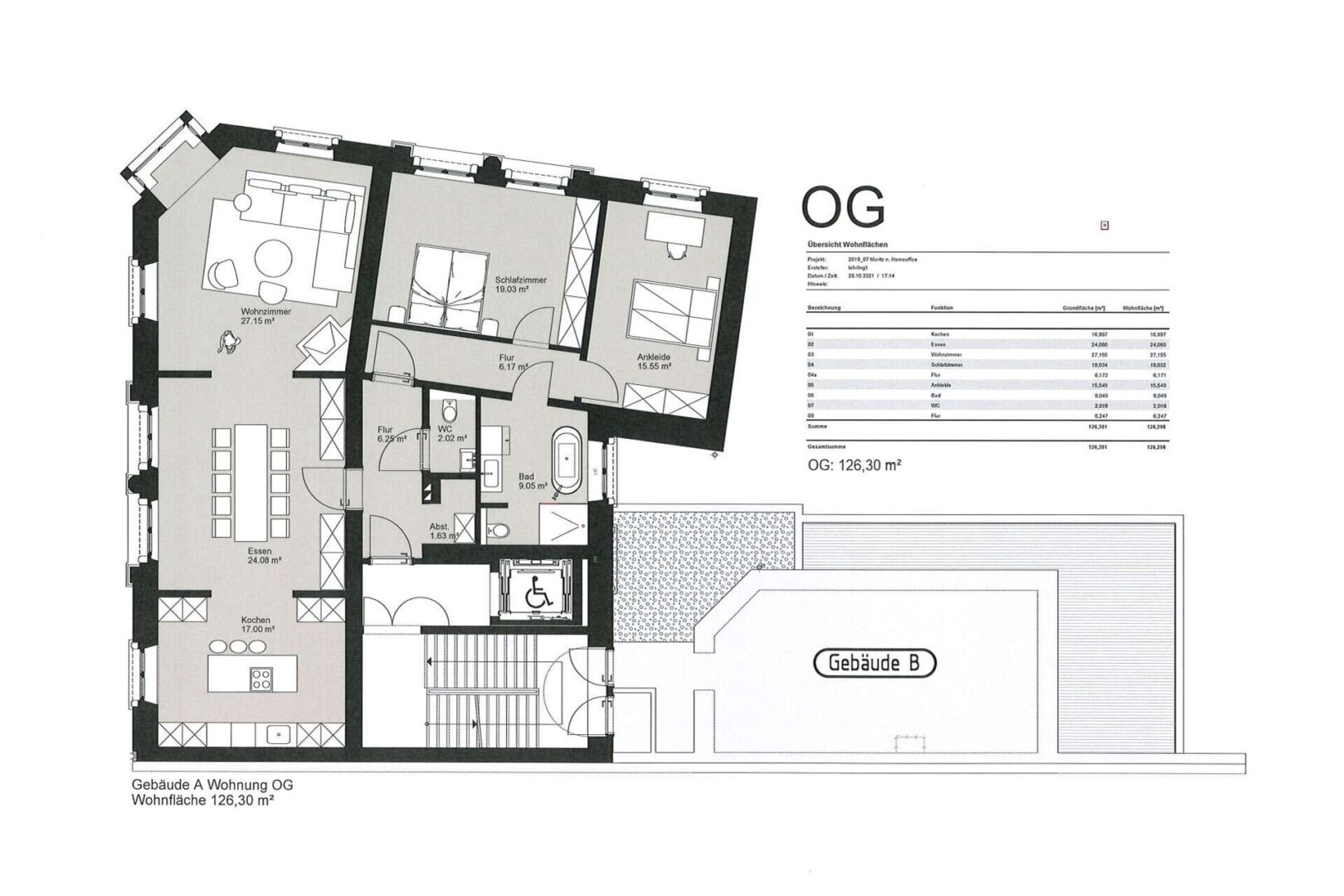
Die angebotene Wohnung befindet sich im ersten Obergeschoss des Hauptgebäudes. Sie gliedert sich in einen Koch-/Essbereich mit hochwertiger Einbauküche und freistehender Kochinsel, ein separates Wohnzimmer, das Elternschlafzimmer mit angrenzender Ankleide, ein modernes Bad mit freistehender Badewanne, Dusche und WC, ein separates Gäste-WC und eine kleine Abstellnische. Die zentrale Diele verbindet die Räumlichkeiten.
Ein Garagenstellplatz im Innenhof sowie ein Außenstellplatz runden das Angebot ab.
Die Wohnung ist wie folgt aufgeteilt:
-Kochen: ca. 17 m²
-Essen: ca. 24 m²
-Wohnen: ca. 27 m²
-Schlafzimmer: ca. 19 m²
-Ankleide/ Arbeitszimmer: ca. 15 m²
-Hauptbad mit Dusche und Badewanne: ca. 9 m²
-Gäste-WC: ca. 2 m²
-Flur 1: ca. 6 m²
-Flur 2: ca. 6 m²
-Abstellnische: ca. 2 m²
Zur Wohnung gehört außerdem ein eigenes Kellerabteil und der Zugang zur Gemeinschaftswaschküche mit Anschlussmöglichkeiten für Waschmaschine und Trockner. Der Keller kann direkt von der Wohnung aus bequem mit dem Aufzug erreicht werden.
Die hochwertige Einbauküche mit Kochinsel sowie die eingebauten Badmöbel sind in der Kaltmiete enthalten. Der Garagenstellplatz ist für monatlich 100 € zu mieten. Ein zusätzlicher Außenstellplatz kann bei Bedarf für 70 € angemietet werden. Die Nebenkostenvorauszahlung beträgt 378 € / Monat. Die Mietkaution beträgt 3 Monatskaltmieten. Eine Mindestmietdauer von 2 Jahren ist gewünscht.
Eine Haustierhaltung ist nicht erwünscht.
Diese Wohnung ist ideal für Liebhaber von historischen Gebäuden, die nicht auf moderne Annehmlichkeiten verzichten möchten. Sie bietet eine perfekte Kombination aus stilvollem Wohngefühl mit einem Hauch von Geschichte.

