Sie suchen ein schönes, flaches Neubau-Grundstück für Ihr neues Eigenheim?
In vorteilhafter Lage in Meckel "Im Wieschen" bieten wir Ihnen die seltene Chance, Ihr Traumhaus Wirklichkeit werden zu lassen. Das Grundstück ist voll erschlossen und kann sofort bebaut werden.
Hier bauen wir für Sie Ihr neues Zuhause in bewährter, baubiologisch gesunder Wolf-Haus-Qualität.
Ihre Vorteile auf einen Blick:
+ Bauen aus einer Hand durch ein langjährig erfahrenes und wirtschaftlich stabiles, deutsches
Unternehmen (die Firma Wolf besteht inzwischen seit über 125 Jahren)
+ Ausgewählte Materialien für eine nachhaltige und ökologische Bauweise
+ Sinnvolle Details und hochwertige handwerkliche Ausführung
+ Vorbildliche Umsetzung der Anforderungen für den klimafreundlichen Neubau
+ Technisch ausgereift und durchdacht
+ Professionelle Begleitung durch den gesamten Planungs- und Bauprozess
Gerne besprechen wir mit Ihnen Ihre individuellen Wünsche.
In einem offenen, persönlichen Gespräch klären wir mit Ihnen die Möglichkeiten, die voraussichtlichen Kosten und die Rahmenbedingungen Ihres Bauvorhabens.
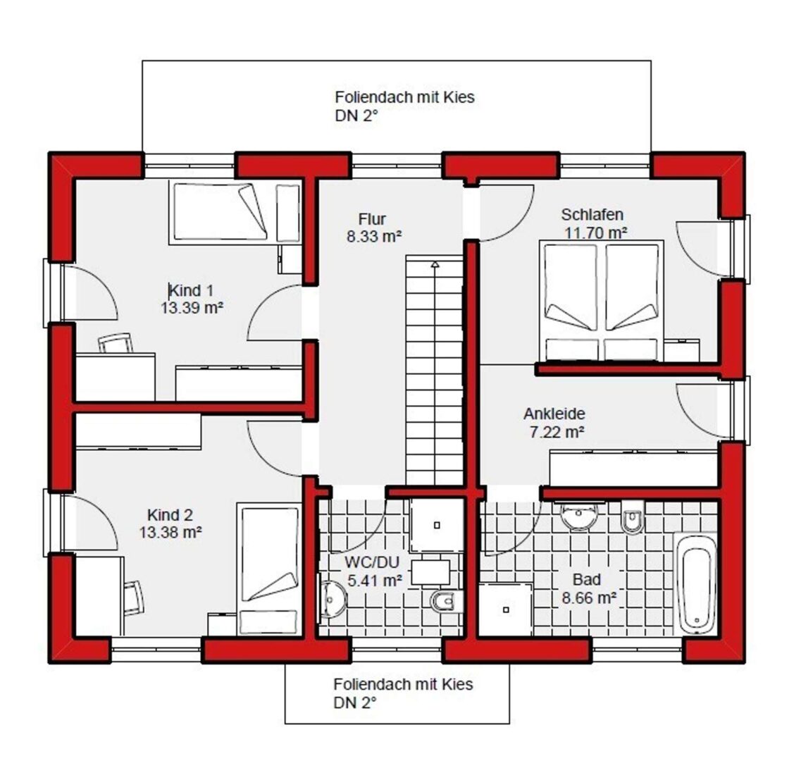
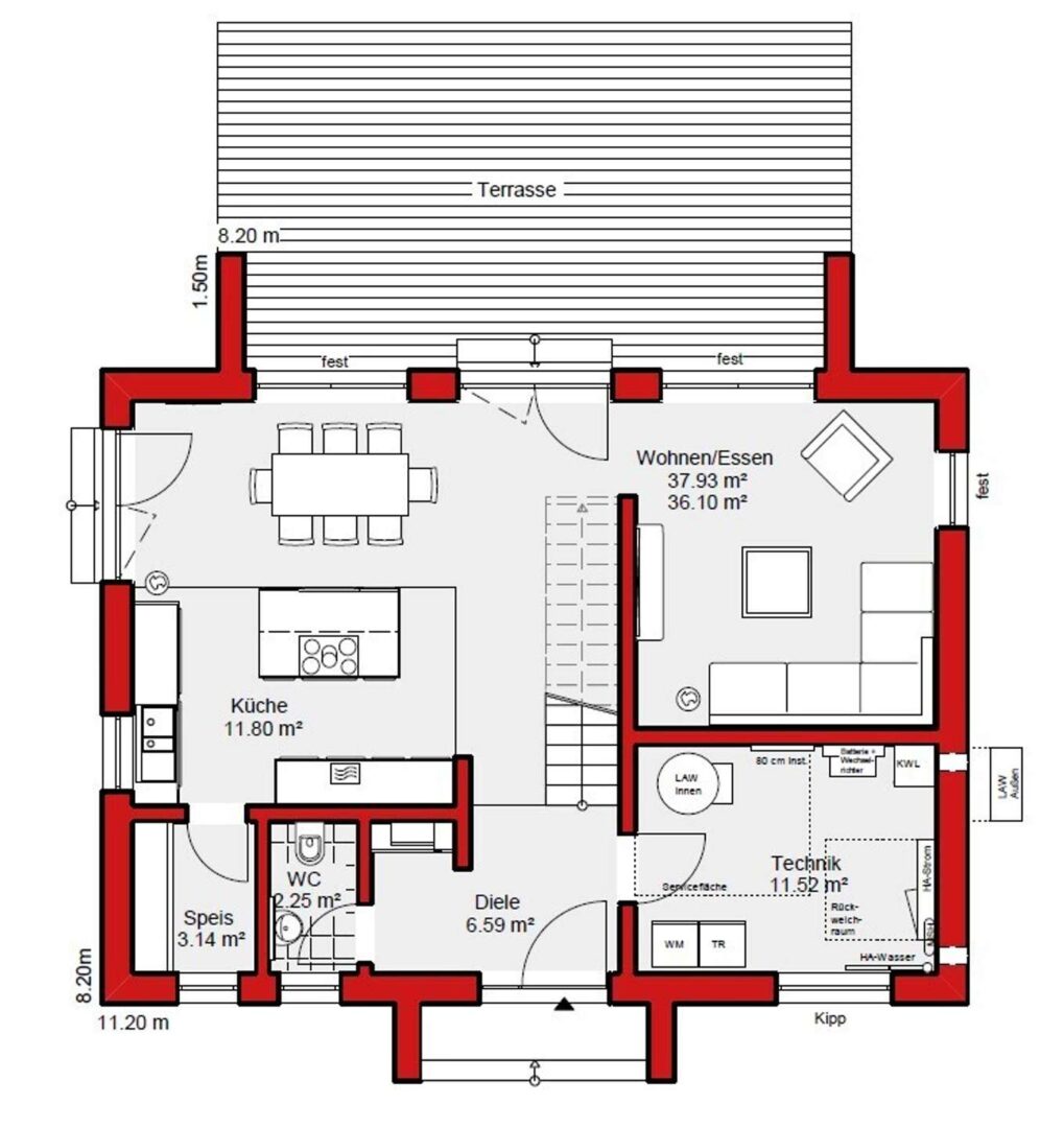
Gemäß aktueller Baubeschreibung "fast fertig" kostet das angebotene Haus (Edition 141) ab 375.379,- € zzgl. Bodenplatte 38.735 €, (zzgl. übliche Baunebenkosten).
Das Grundstück zum Hausangebot in Meckel erwerben Sie für 135.000 € direkt vom Eigentümer. (zzgl. Erwerbsnebenkosten bzw. Notar, Amtsgericht, Courtage)
Die Bauleistungen sind provisionsfrei.
Weitere Informationen zu uns und unserem Baupartner Wolf-Haus finden Sie auf unserer Website: https://www.gilbers-baasch.de/hausbau-trier/holzbauweise/












