Diese repräsentative Immobilie aus dem Jahre 2012 befindet sich im Gewerbegebiet Handwerkerhof in Schweich-Issel. Auf einem insgesamt ca. 2.800 m² großen Grundstück vereint das Objekt modernes Wohnen mit vielseitigen Möglichkeiten für gewerbliche Nutzung und bietet somit eine ideale Lösung für Unternehmer, die Wohnen und Arbeiten an einem Ort kombinieren möchten.
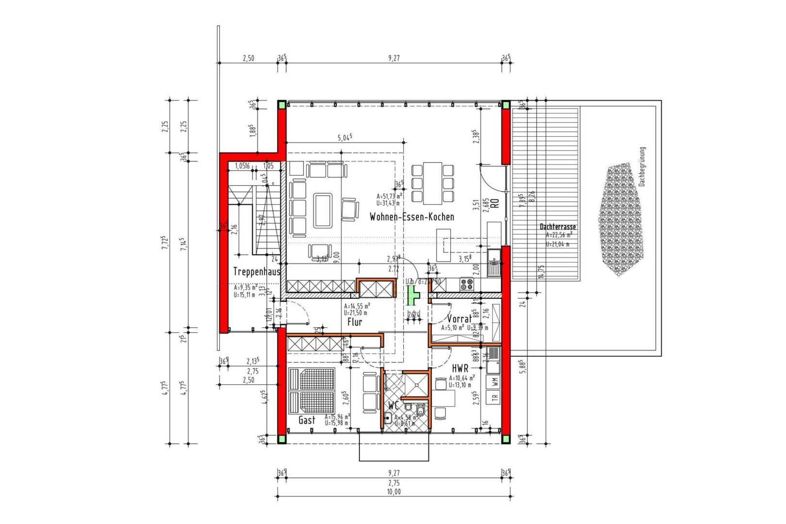
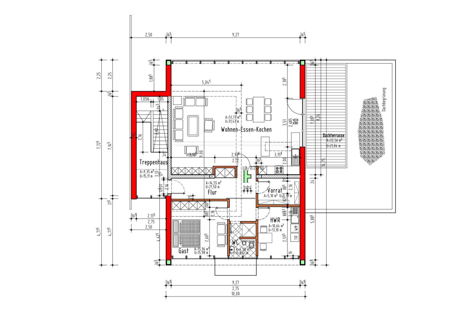
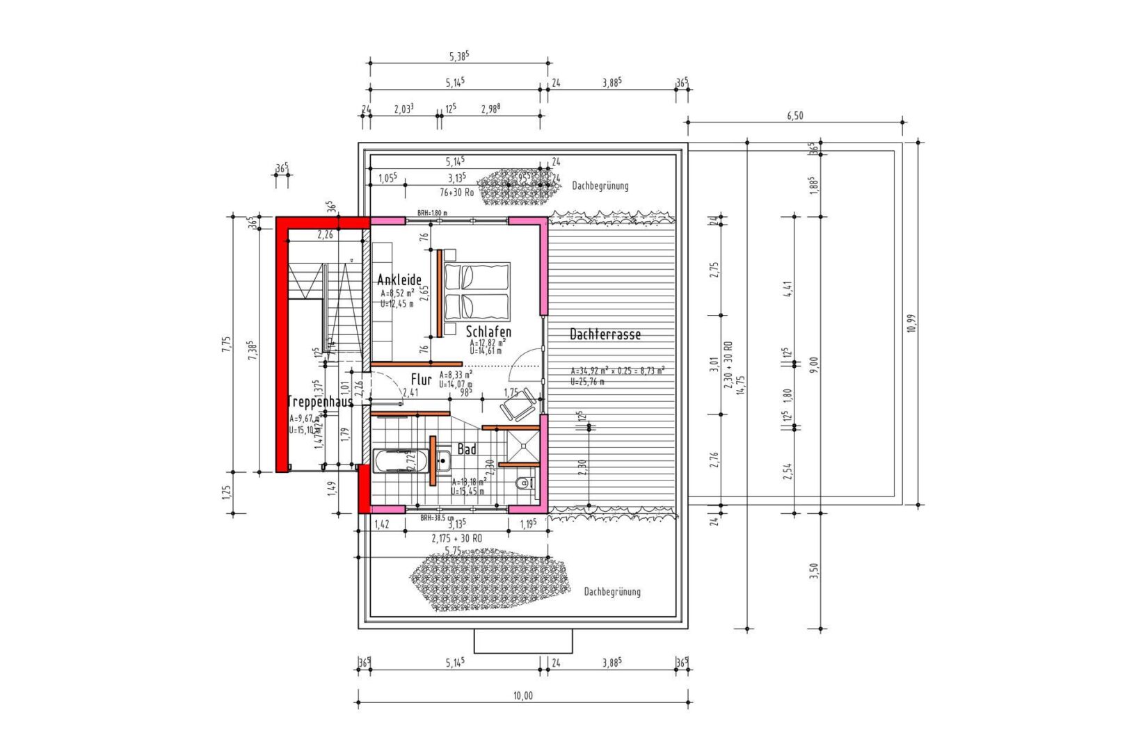
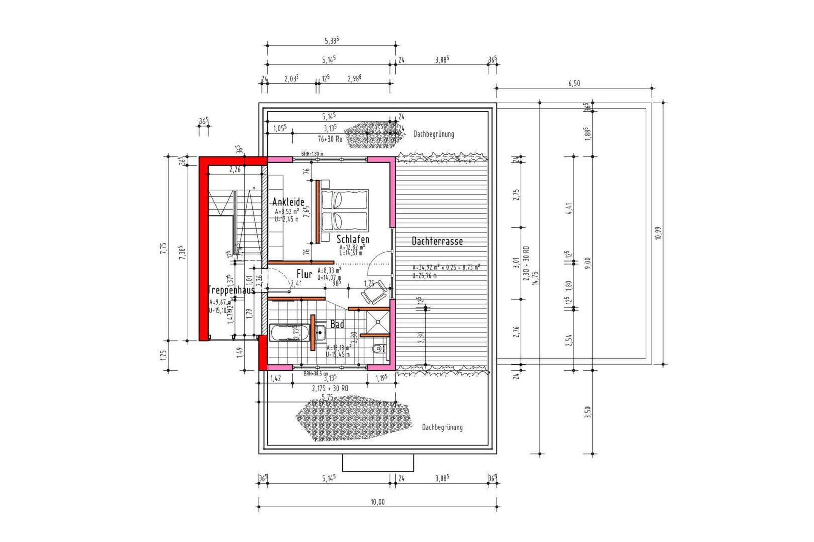
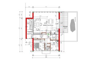
Die Wohnfläche beträgt ca. 193 m² und zeichnet sich durch eine hochwertige Ausstattung aus. Die großzügigen, lichtdurchfluteten Räume schaffen eine angenehme Wohnatmosphäre. Besonders hervorzuheben sind die zwei Dachterrassen, die viel Platz zur Erholung im Freien bieten. Die moderne Einbauküche unterstreicht das exklusive Ambiente der Wohnung. Zur Immobilie gehören außerdem zwei Stellplätze in einer Doppelgarage, die direkt ans Wohngebäude angeschlossen ist.
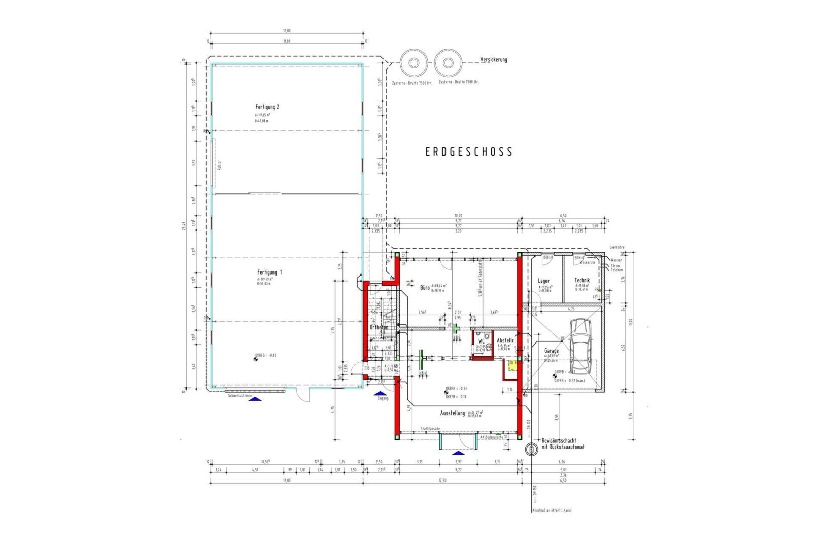
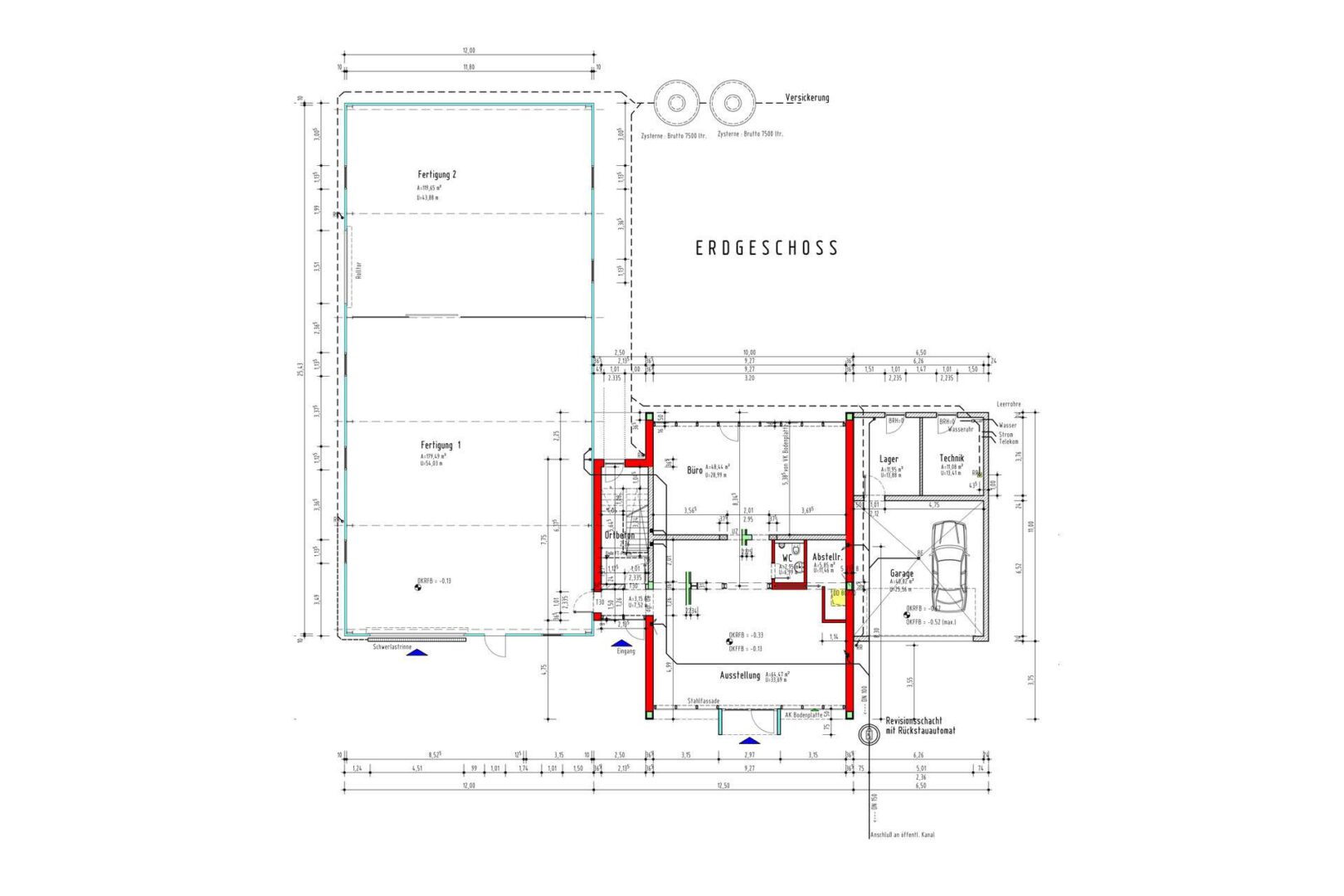
Der gewerbliche Teil der Immobilie erstreckt sich über insgesamt ca. 412 m². Der Büro- und Ausstellungsbereich umfasst rund 112 m² und bietet einen repräsentativen Rahmen für Kundenempfang, Beratungen oder Präsentationen. Dieser Bereich eignet sich ideal für Unternehmen, die eine Kombination aus Büro- und Ausstellungsfläche benötigen. Die angrenzende Lager- und Produktionshalle mit einer Fläche von ca. 300 m² ist befahrbar und mit zwei Sektionaltoren ausgestattet, die eine komfortable Anlieferung und Logistik ermöglichen. Mit einer Hallenhöhe von 4,90 m und einer Kranbahn mit einer Traglast von 630 kg bietet die Halle hervorragende Voraussetzungen für den Einsatz in Produktion oder Lagerung.
Die Gewerbehalle ist zudem so ausgelegt, dass eine Erweiterung der Hallenfläche bereits vorbereitet ist. Zudem besteht weiteres Erweiterungspotential auf einer noch freien, unbebauten Grundstücksfläche.
Diese einzigartige Kombination aus hochwertigem Wohnraum und großzügigen Gewerbeflächen macht das Objekt besonders attraktiv. Die Immobilie bietet Flexibilität und vielfältige Nutzungsmöglichkeiten für unterschiedlichste Branchen.
Für weitere Informationen oder zur Vereinbarung eines Besichtigungstermins stehen wir Ihnen gerne zur Verfügung.























