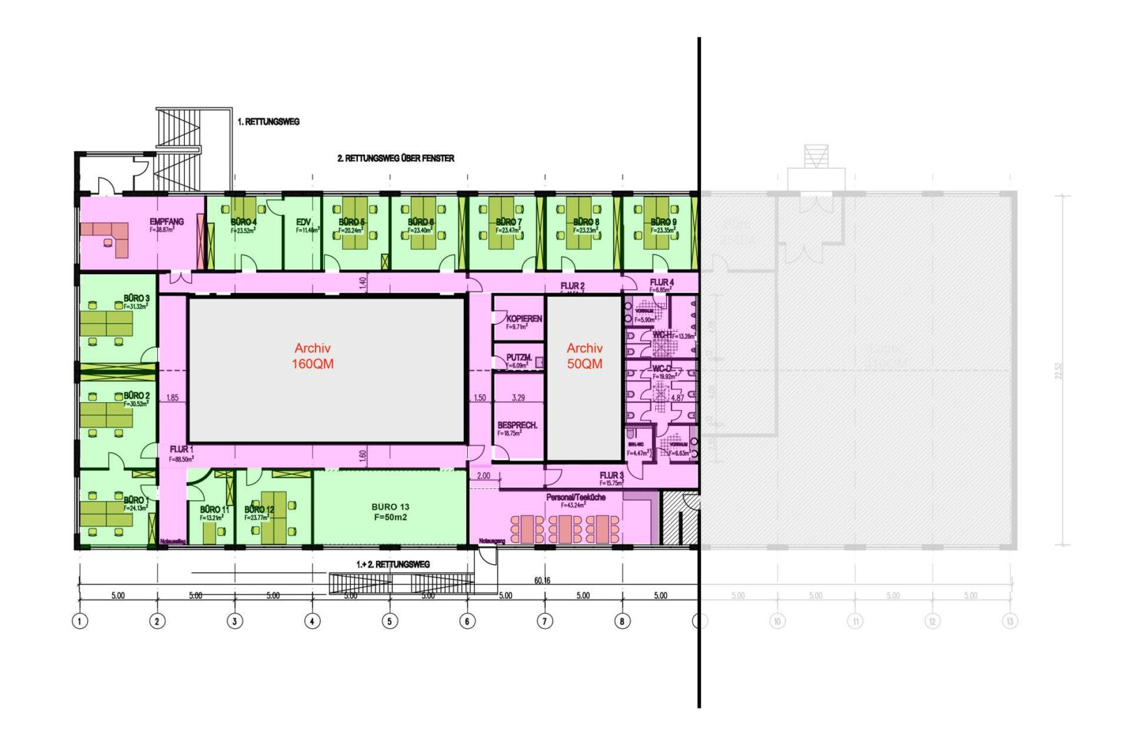
Zur gewerblichen Vermietung steht eine großzügige und repräsentative Büroetage mit einer Mietfläche von ca. 840 m², die ideale Voraussetzungen für moderne Unternehmensstrukturen bietet. Die Fläche überzeugt durch ihre durchdachte Raumaufteilung und eignet sich hervorragend als Firmensitz, Verwaltungsstandort oder für dienstleistungsorientierte Betriebe.
Die Räumlichkeiten wurden renoviert und präsentieren sich in einem gepflegten, zeitgemäßen Zustand. Dank der vorhandenen Möblierung ist ein kurzfristiger und unkomplizierter Bezug möglich, ohne zusätzlichen Investitionsaufwand für die Einrichtung. Dies ermöglicht einen effizienten Start in den neuen Geschäftsräumen.
Die Übergabe erfolgt nach Absprache und bietet somit flexible Gestaltungsmöglichkeiten hinsichtlich des Einzugstermins.
Die monatliche Nettokaltmiete beträgt 4.500 EUR und steht in einem attraktiven Verhältnis zur großzügigen Fläche und der gebotenen Ausstattung.
Ein weiterer Vorteil sind die Stellplätze direkt vor dem Gebäude, die sowohl Mitarbeitern als auch Kunden komfortable Parkmöglichkeiten bieten und zur guten Erreichbarkeit des Standorts beitragen.
Diese Büroetage bietet optimale Bedingungen für Unternehmen, die Wert auf großzügige Flächen, eine gepflegte Ausstattung und eine gute Erreichbarkeit legen.
Weiterführende Informationen erhalten Sie gerne auf Nachfrage.








