Zum Verkauf steht eine vielseitig nutzbare und gepflegte Gewerbehalle mit PV-Anlage im etablierten Gewerbegebiet „Paesch“ in Longuich, unweit von Trier.
Die Immobilie befindet sich auf einem ca. 3.000 m² großen Grundstück und bietet eine funktionale Aufteilung, die sich ideal für Handels- oder Lagernutzungen eignet.
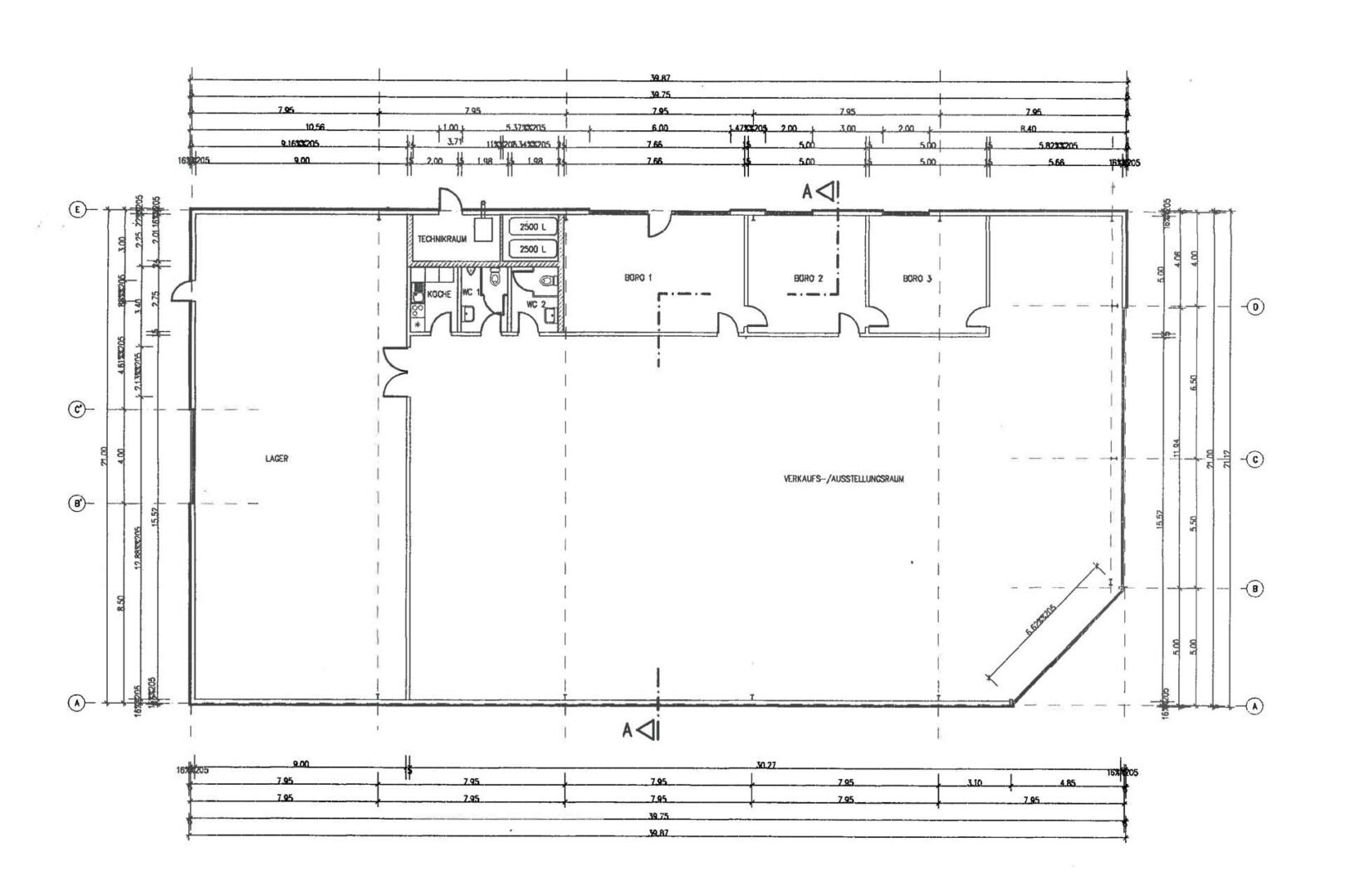
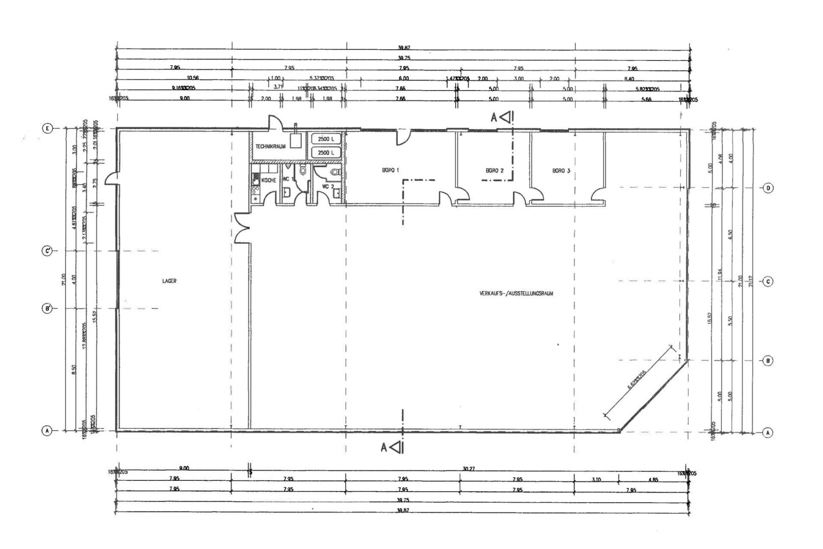
Die Halle verfügt über eine gesamte Nutzfläche von rund 790 m² bei einer Traufhöhe von rund 5 Metern. Der Haupteingang bietet eine großzügige Ausstellungsfläche von ca. 490 m². Ergänzt wird diese durch ein separates Lager mit einer Fläche von etwa 185 m² sowie einen Bürotrakt mit drei abgeschlossenen Büroräumen auf insgesamt ca. 100 m². Für den täglichen Betrieb stehen zudem eine praktische Teeküche sowie getrennte Sanitäranlagen für Damen und Herren zur Verfügung.
Aktuell ist die gesamte Immobilie vermietet und erwirtschaftet eine Nettokaltmiete in Höhe von 54.000 EUR pro Jahr zzgl. einer jährlichen Einspeisevergütung der PV-Anlage in Höhe von ca. 26.000 EUR. Damit bietet das Objekt ein stabiles und sofort verfügbares Ertragspotenzial und ist sowohl für Kapitalanleger als auch für Eigennutzer mit mittelfristiger Perspektive interessant.
Die Lage im Gewerbegebiet „Paesch“ überzeugt durch ihre verkehrstechnische Anbindung: Die nahegelegene Autobahn A1/A602 ermöglicht eine schnelle Erreichbarkeit von Trier, Luxemburg, Koblenz und Saarbrücken. Das Umfeld ist geprägt von soliden mittelständischen Betrieben aus Handwerk, Handel, Logistik und Produktion. Die Zufahrtsmöglichkeiten zur Halle sind gut, sodass auch Anlieferungen mit größeren Fahrzeugen problemlos möglich sind.
Dank ihrer klaren Struktur und des gepflegten Gesamtzustands eignet sich die Halle ideal für eine Vielzahl von gewerblichen Nutzungskonzepten – vom Ausstellungsraum über Lager- und Versandlogistik bis hin zu einem Verwaltungssitz mit angeschlossenem Betrieb.
Die Kombination aus funktionalem Gebäude, wirtschaftlich attraktiver Lage und bestehender Vermietung macht diese Gewerbeimmobilie zu einer lohnenden Investition mit langfristigem Potenzial.
Weiterführende Informationen erhalten Sie gerne auf Nachfrage.











